Page 1 of 1
Visio replacement ?
Posted: Thu Aug 29, 2024 1:17 pm
by vincen
Hi
I'm looking since ages for a software usable on Linux that would be an equivalent of Visio/Autocad to do drawings like the ones below. Is QCAD good for that ?

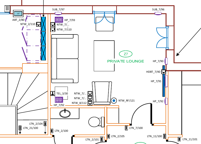
- Exemple 1
- Screenshot_20240829_141323.png (59.2 KiB) Viewed 63052 times

- Exemple 2
- Screenshot_20240829_141417.png (281.93 KiB) Viewed 63052 times
Is it possible to create or import libraries of devices ? or will I have to create a whole library of devices in QCAD ?
Thanks
Vincèn
Re: Visio replacement ?
Posted: Thu Aug 29, 2024 1:29 pm
by andrew
QCAD should be suitable for floor plans.
For electrical diagrams or other diagrams much less so as it does not offer any type of automatic connectors. Connectors are typically found in drawing / diagram / office type software packages, but not so much in generic CAD systems like QCAD.
As for the part libraries, please refer to our tutorial
Working with the Part Library at:
https://qcad.org/en/tutorial-working-wi ... rt-library
Re: Visio replacement ?
Posted: Sun Sep 01, 2024 1:40 pm
by vincen
Hi @andrew,
Thanks a lot for your answer

I better understand now. For the automatic connectors feature missing, there is no way to do it or use an other feature to do that ?
Thanks
Vincèn
Re: Visio replacement ?
Posted: Tue Sep 03, 2024 3:48 pm
by andrew
vincen wrote: ↑Sun Sep 01, 2024 1:40 pm
For the automatic connectors feature missing, there is no way to do it or use an other feature to do that ?
You can of course draw these connections using regular lines or polylines but they will not maintain their connection to the boxes as you might expect as QCAD does not have connectors.